Next Project

Interactive Amazon Store

Part 1 Project 2016
Lyndsy Hutchinson
University of Lincoln Lincoln | UK
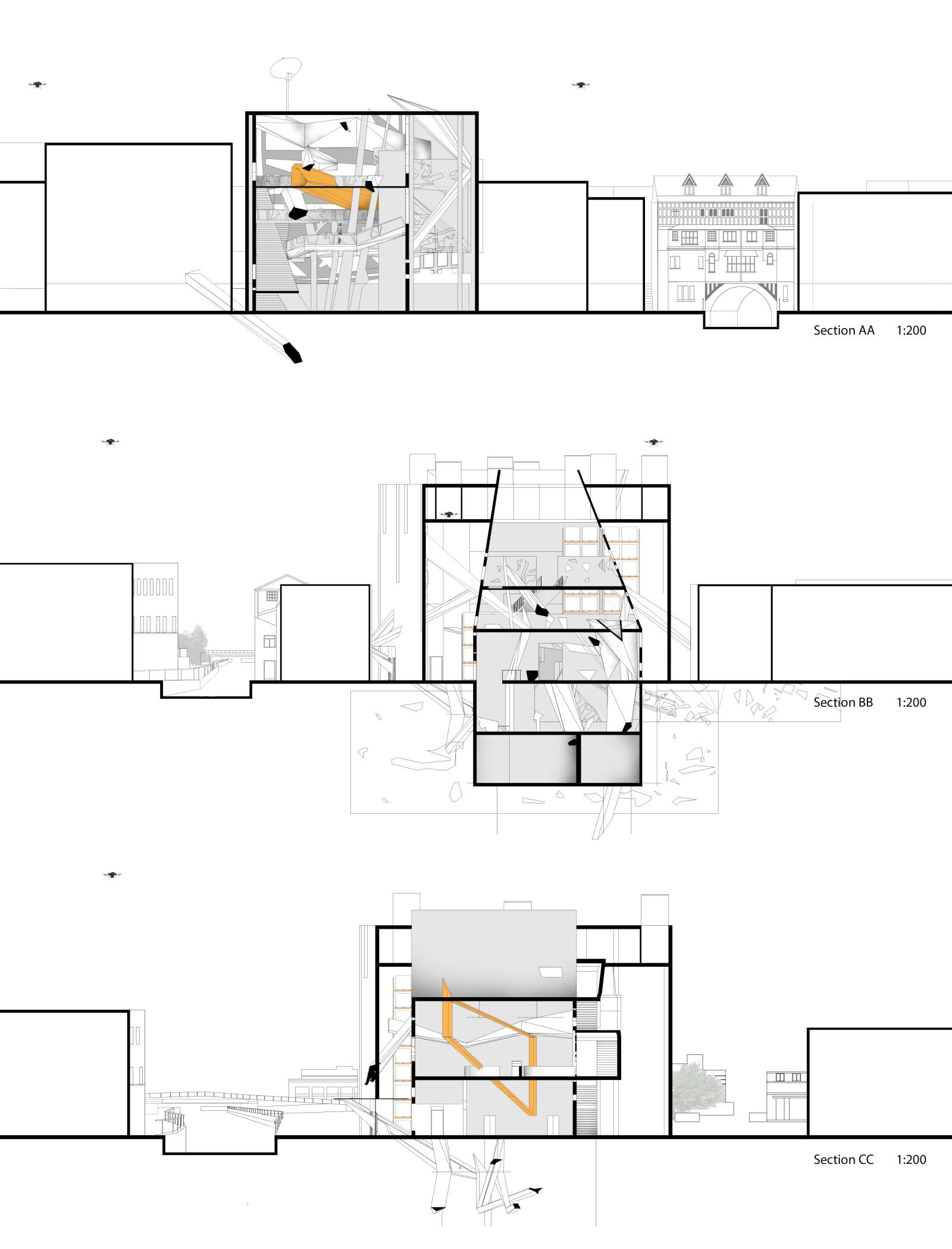
Amazon are moving from online to the high street, this project creates an interactive amazon store in Lincoln. The building will allow people to buy or order in store, the purchase may be taken away or sent directly home by drone transportation. The shop is not like any other on the high street, it will allow people to test amazon products and interact with the building.

Tutor(s)
Mr Richard Wright
2016
• Page Hits: 3508         • Entry Date: 14 October 2016         • Last Update: 14 October 2016