Next Project

Entailment Dwelling, Landscape and Territory

Part 1 Project 2017
Felipe Mosquera
Mellissa Cante
Pilot University of Colombia Bogota | Colombia
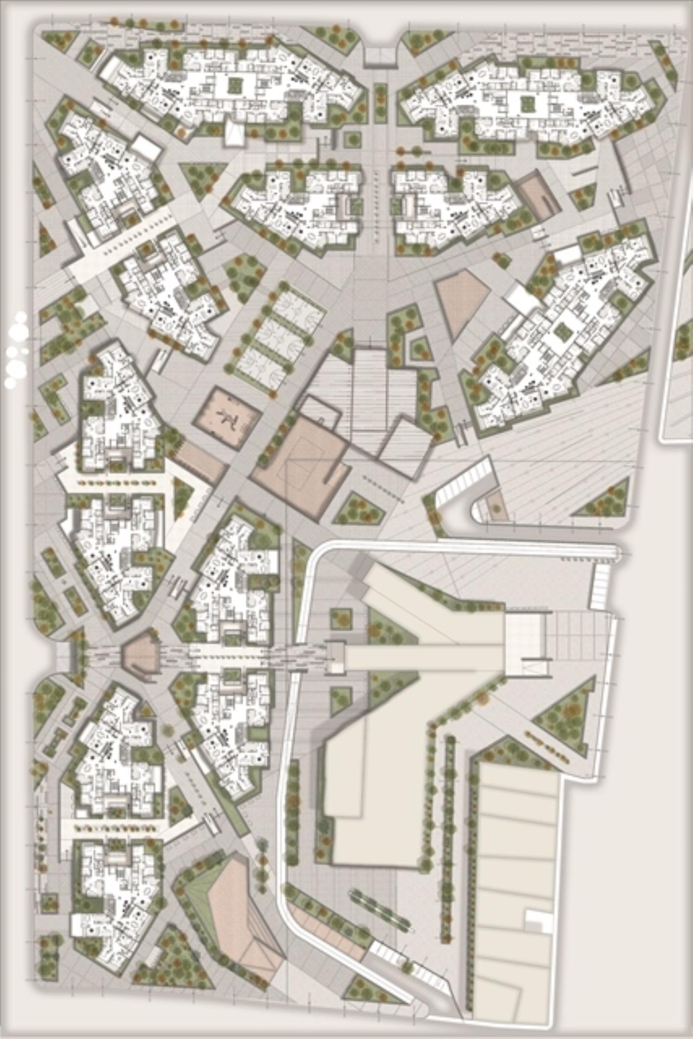
The project is located to the west of the urban area of the municipality of Cajica, in an area residential characteristic of the urban expansion that is being presented in the municipality. The project is developed so that each of the actions covered by the proposal of intervention, is based on a comprehensive methodology that considers the social, economic and environmental, which adapt to the dynamics of the sector.

Tutor(s)
Hernado Giraldo
2017
• Page Hits: 3881         • Entry Date: 02 October 2017         • Last Update: 10 October 2017