Next Project

Mangwon Market - Sustainability in Architecture

Part 1 Project 2018
Seol Baek
Korea National University of Arts | South Korea
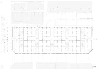
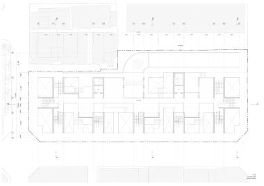
Mangwon market is a Korean traditional market in Seoul. Due to the people’s interest in a traditional market, which has been growing recently, there is a lot of influx of outsiders along with the existing demand of local residents. However, the current market has difficulty in meeting the demands. This project proposes a new form for a sustainable market through the interaction of commercial spaces, residential spaces and open spaces.


Tutor(s)
Sooyoung Kim
2018
• Page Hits: 4327         • Entry Date: 10 October 2018         • Last Update: 10 October 2018