Next Project

A Place for Displacement: The Power of Gastronomy

Part 2 Project 2019
Stephanie Harrison
Liverpool John Moores University Liverpool | UK
In 2017, there were 30.6 million new refugees associated with conflict, disasters brought about by climate change and epidemics. This magnitude of displacement puts pressure on important services and requires time, money and a clear strategy on future planning.

The current segregation into camps with poor facilities is not deemed successful for the inclusion of people into society who have experienced trauma. By using a successful strategy of re homing and including people a richer and more culturally diverse civilization will be the reward.

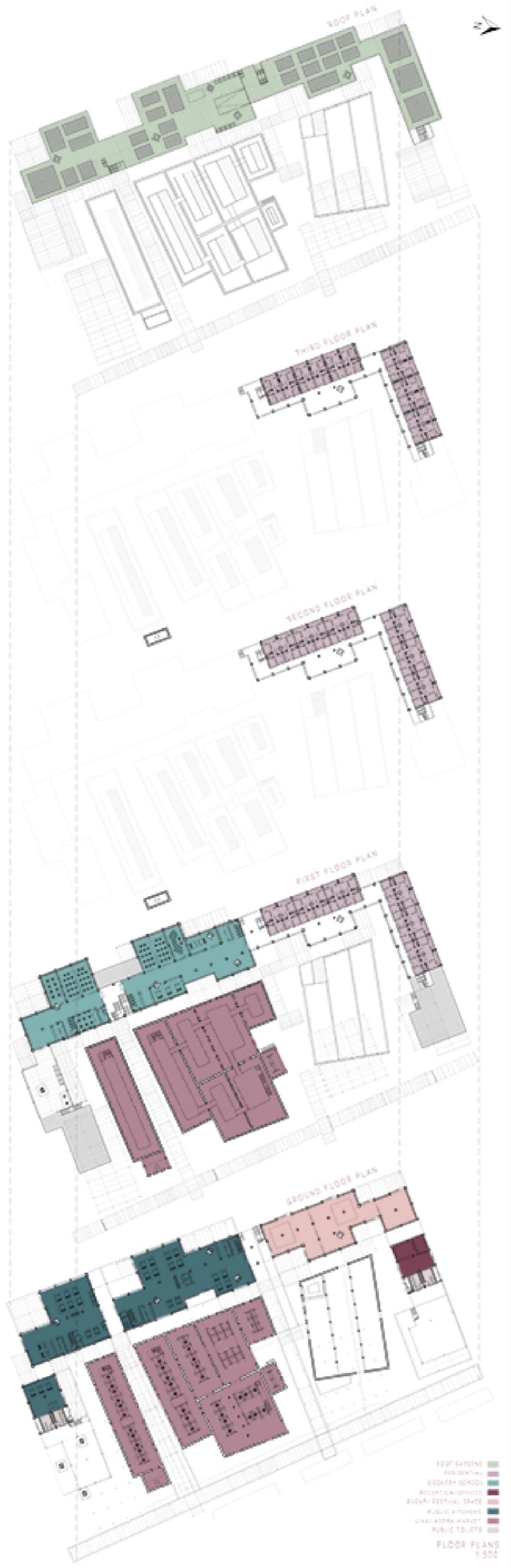
Secondary cities such as Elefsina would be an appropriate choice of location for these social thresholds as it’s not only 20km from Athens as well as on the coastline for more direct border crossing. Greece is central to the Mediterranean axis of migration via three continents acting as a ‘gateway’ to further destinations.

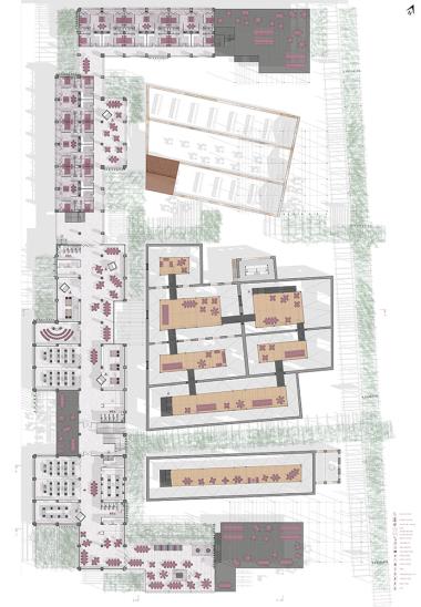
Using food as a universal language, ‘cook it yourself kitchens’ will enable social gatherings of different cultures. This will allow people to buy from local markets using a ‘pick and mix’ system where vendors can sell their own produce, this will result in fresh food being cooked daily and minimize waste for over purchasing.


Tutor(s)
Dominic Wilkinson
2019
• Page Hits: 6967         • Entry Date: 05 September 2019         • Last Update: 05 September 2019