Next Project

Mixed Company: Platform Office

Part 1 Project 2019
Matthew Scott
University of Arkansas | USA
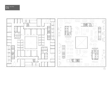
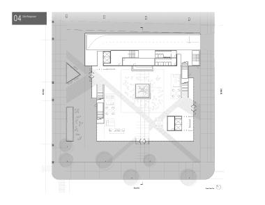
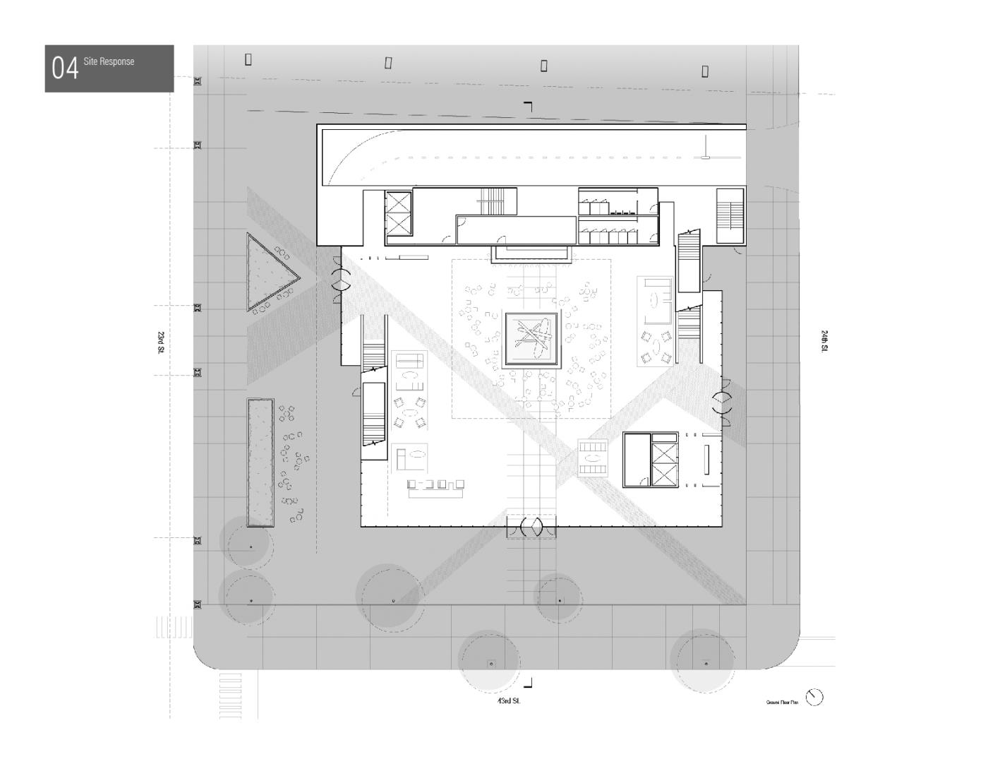
In project 1, multi-use private office pods are intersected by parallel rows of linear work surfaces. Fixed tables organize formal workspaces at the centre of the office, while loose furniture facilitates informal work at the perimeter of the space.

Project 2, Platform Office, reinterprets this organizational strategy vertically. It comprises a striated layering of “thick” office floors that alternate between shared, open-plan office spaces on the top surface of each one-story trussed platform, and an array of leasable offices, team spaces, and meeting rooms within. This organizational scheme produces a spatial striation—alternating between the light-filled openness of the platform’s top surface and the intimate, cellular enclosure of the trussed space underneath—that is further reflected on the building’s façade. Floors are connected visually by a central atrium and physically by way of two meandering structural stair cores that stack open, social circulation above rated egress paths.


Tutor(s)
Brian Holland
2019
• Page Hits: 2366         • Entry Date: 04 October 2019         • Last Update: 04 October 2019