Next Project

Capsule Office: Office Urbanisms

Part 1 Project 2020
Benjamin Ebbesmeyer
University of Arkansas | USA
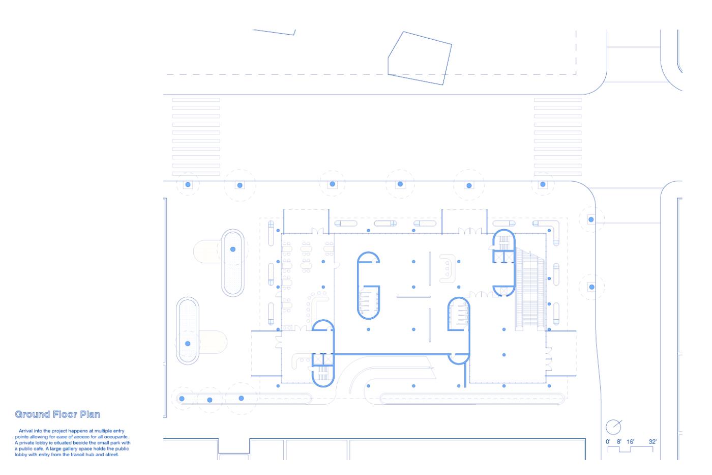
A new architecture for a changing workforce is proposed for Los Angeles. Rapid and dramatic shifts in information technologies, management practices, and workplace cultures constantly change the conventional theories of workplace design and architecture.

Investigation of these changes and the challenges and opportunities created by them allows for exploration in creating meaningful design innovation. Issues emphasized and addressed throughout the project include both the building and proposed interior. Issues addressing the building scale include space, structure, systems, and envelopes. Issues addressing the interior scale include space, circulation, furniture, lighting, and view.

Providing a variety of spatial conditions using mass-void, circulation, daylight, and spatial planning the scheme proposes a system of capsules in plan and section. Structure is situated as a system of concrete columns and plates pulled away from the exterior of the project allowing a free facade and the use of floor to ceiling glazing. Situated in front of the glazing is a permeable facade with a field of openings creating interesting spatial conditions and views for the office inhabitants.

Perimeter and interior voids help create a variety of spatial conditions. Gathering spaces occur throughout the middle near interior voids. Perimeter voids create unique spaces for program and view.


Tutor(s)
Brian Holland
2020
• Page Hits: 4027         • Entry Date: 01 October 2020         • Last Update: 20 November 2020