Next Project

Queye Tower – Station. Connecting Spaces: Integrating Metropolitan and Domestic Scales

Part 1 Project 2020
Luis David Valero Reyes
Jorge Tadeo Lozano University | Colombia
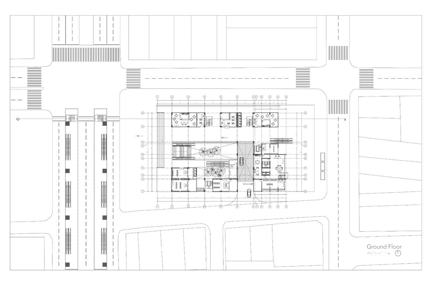
The project is located in Bogota, Colombia, in the Chapinero neighbourhood, next to the future first line of Bogota’s Metro, a project that has been stalled for years, and which seems to finally see the light in 2020, this being a key factor for project design.

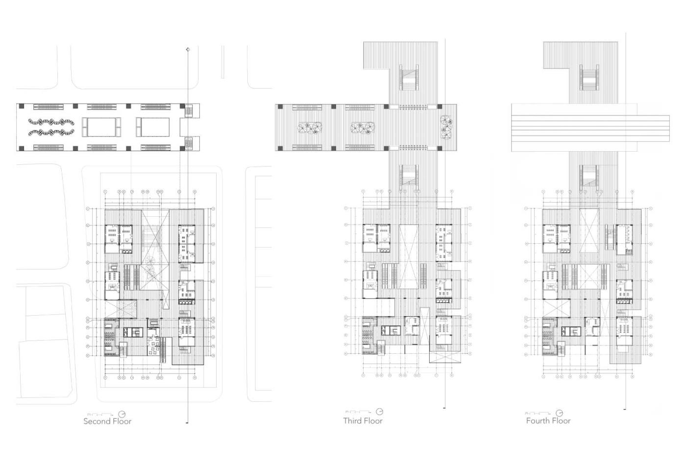
The integration of the elevated metro station with the project (commercial and housing) results in a mixed-use development consisting of a 30-story tower and a commercial use platform that is integrated with the Transmilenio Bus Station and the elevated metro that communicates this area with Bogota’s

International Centre. Priority is given to protected public space, a meeting and connection place where people can go about without any restriction.

The commercial area is connected to the residential tower that, although is for the exclusive use of residents, it is conceived under the same notion of community by having green areas that work as interior walkways that connect each floor of the tower, and at the same time function as an ecological bridge between the eastern hills and the Bogota savanna.


Tutor(s)
Peter Bright
Luis Manuel Rodriguez
2020
• Page Hits: 3001         • Entry Date: 06 October 2020         • Last Update: 19 November 2020