Next Project

Agriculture 2.0

Part 1 Project 2020
Alexander Wallace
Manchester School of Architecture | UK
Agriculture 2.0 looks at the deconstruction of food infrastructure and by extension the way we think about food as a society. By challenging the commoditisation of food we can start to transition into a food utility network, acknowledging what it is: a right. We have become used to running water and sanitation being provided to us as basic amenities, why not food.

Using the context of the Irish border, the project looks at the complex political and policy changes of Brexit to prepare the nation for a changing political landscape.

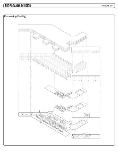
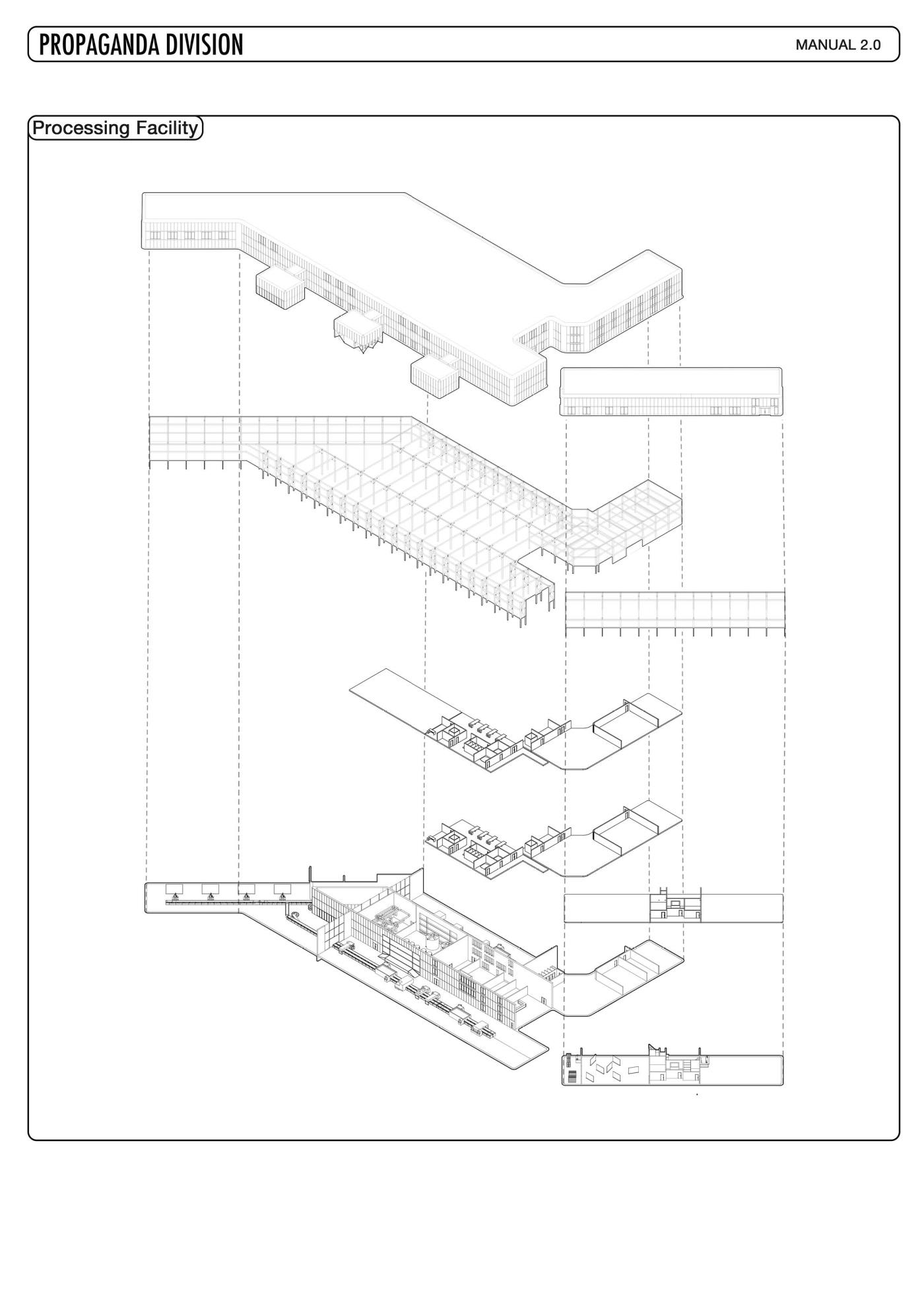
The scheme is designed using modular techniques not just in its details but in its overall philosophy, facilities around the world plugging into the wider network. This modularity is directed through instructional handbooks that focus on all scales from global to detail. A key part of the scheme is community engagement, using local culture to integrate itself into the Landscape.

The Environmental benefits of this new agricultural strategy are limitless, having a positive impact globally through production and transportation. Agriculture 2.0 is not only a transformative project but one that could change the world as we know, allowing access to food to be the right it is.


Tutor(s)
Jack Penford Baker
2020
• Page Hits: 3853         • Entry Date: 11 October 2020         • Last Update: 11 October 2020