Next Project

A Series of Experiential Follies

Part 1 Project 2020
Hong Xi, Clarence Tan
National University of Singapore | Singapore
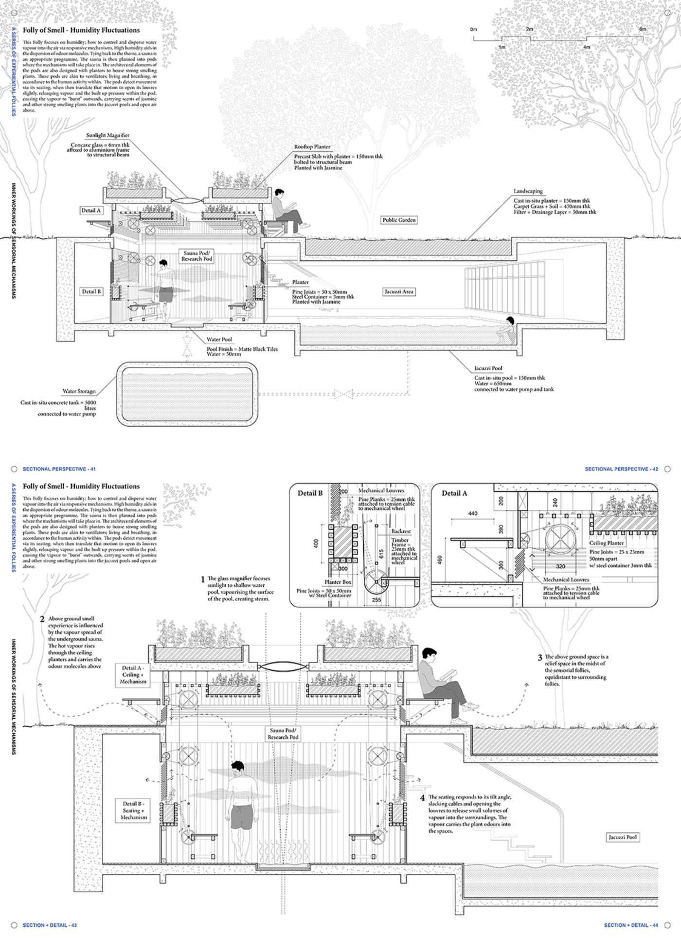
The scheme recognises the physical relationship between man and machine: one of the extensions of human manipulation. Traditionally, machines have been used as an extension of the body to better the physical environment that we live in, up till the present, whereby cloud and virtual technology and the increasingly complicated urban setting strips one of the nuances of physical experiences. The proposal will embody the human senses and affect as a key driver to the development of the scheme, by enabling actions of people in the spaces to reciprocate in the spatial experience. The manipulation of cause and effect to one’s immediate environment enables a subtle sense of empowerment and control, re-establishing man’s role as the master of machines and in turn, environment; integral and not secondary. Additionally, the proposal is a data point of the physical world, recording information of motion and human behaviour on-site for the study of cognitive science. The intervention overall serves its purpose as a therapeutic space for residents by making use of mechanical contraception as an extension of the body to customise environments, studying the human senses and its effects on relaxation and pleasure through a series of experiential follies.

Tutor(s)
Lik Rem Chu
2020
• Page Hits: 7240         • Entry Date: 19 October 2020         • Last Update: 19 October 2020