Next Project

Terrazas Contiguas

Part 1 Project 2021
Isabel Restrepo
Pontifical Bolivarian University | Colombia
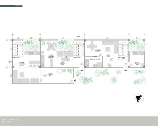
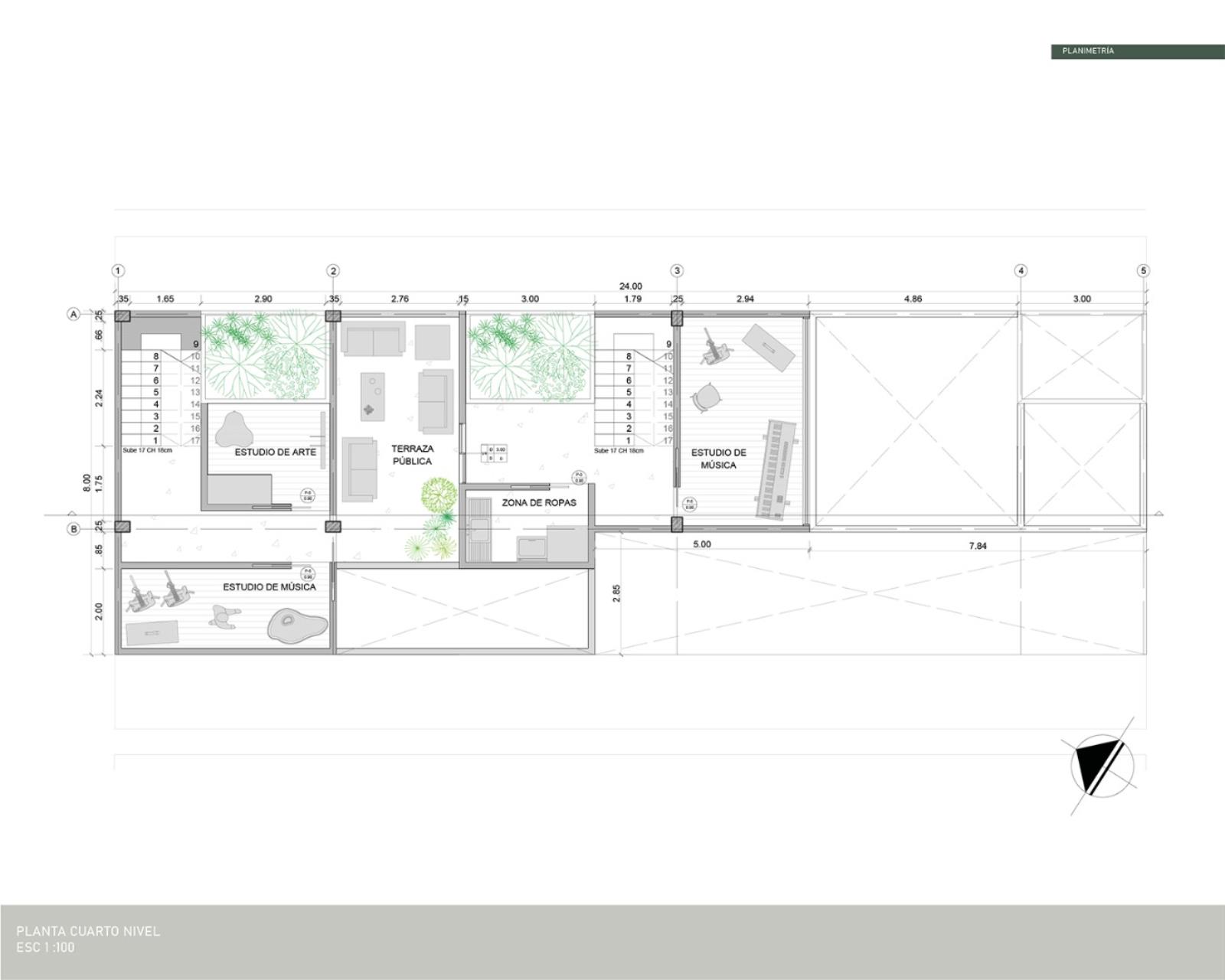
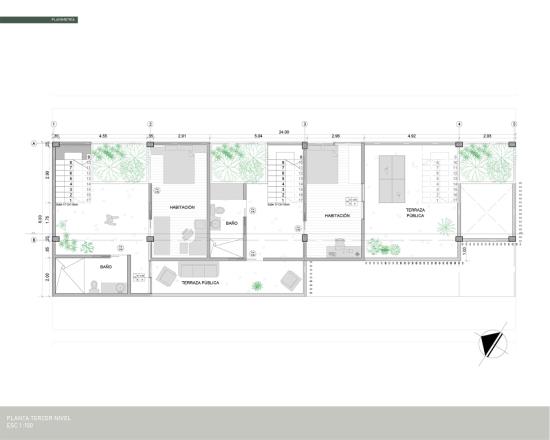
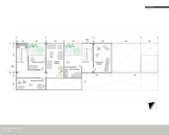
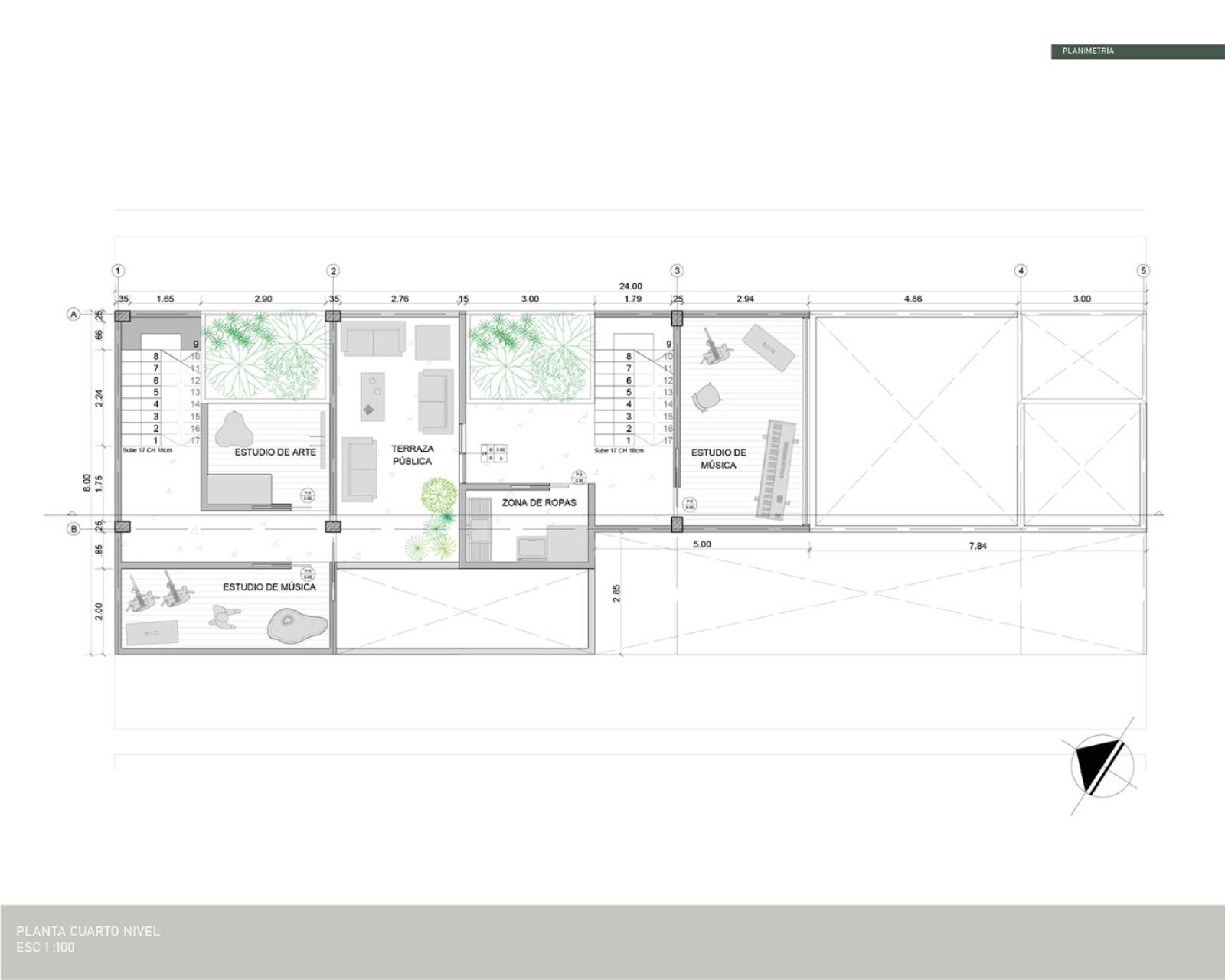
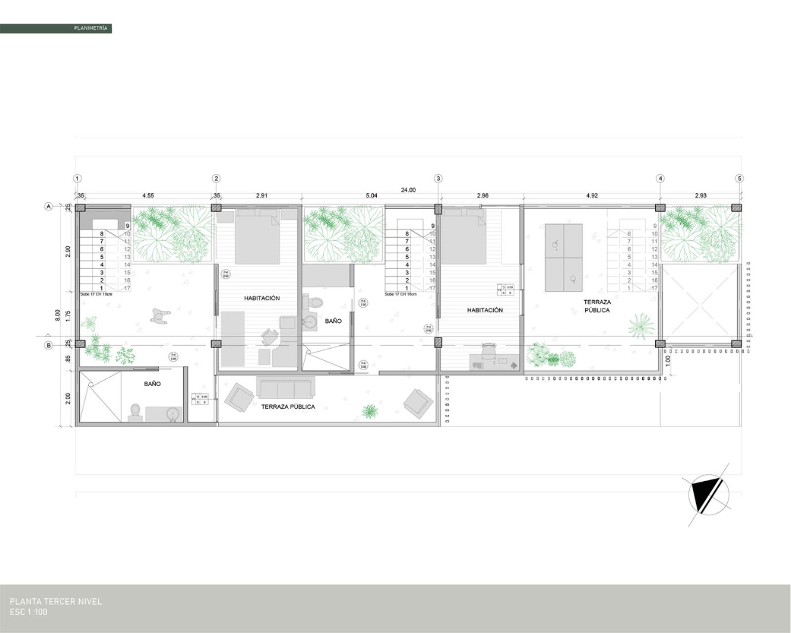
"Terrazas contiguas" is a three-family housing project, specifically related with the environment, and giving answers to users. This project takes as its main reference different types of plants in Manila neighborhood. The project welcomes vegetation for joy, with internal voids that in addition to giving shape to gardens, provides lighting and sort out other
technical components of the house.

Different types of plants are in different type of terraces, and these are the more enjoyable places where the user can do many activities. The garden diversity comes from the environment, and so this directly reflects on the house.


Tutor(s)
Victoria Eugenia Sanchez Holguin
2021
• Page Hits: 4261         • Entry Date: 28 September 2021         • Last Update: 30 September 2021