Next Project

Textile

Part 1 Project 2021
Charlie Eastwood
University of Melbourne | Australia
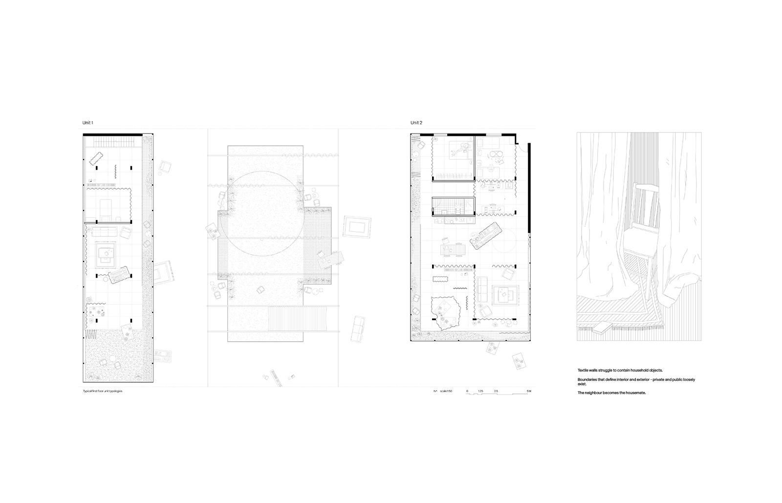
My project seeks to explore the use of textiles for their impermanence, flexibility and diversity in the hope of creating adaptable and experiential spaces.

Through this, my design questions the importance of separation and connection at different scales: between residents, the community, program and the environment. This not only leads to highly flexible unit typologies, but also an array of both internally and externally unique atmospheres.

Interaction with textiles is considered on both a physical and social level. Investigating their value in the perception of spaces, but as well, the ways in which they may stitch the seeds to communal living.

My design approaches the site with a level of sensitivity, referencing the pre-existing condition at different points in time: the native landscape, previous building footprints and the process of demolition/construction.


Tutor(s)
Mark Ng
Djordje Stojanovic
2021
• Page Hits: 3266         • Entry Date: 04 October 2021         • Last Update: 10 November 2021