Next Project

Extension of the National Institute of Heritage, Bucharest

Part 1 Project 2021
Adrian Andrei
Ion Mincu University of Architecture and Urbanism | Romania
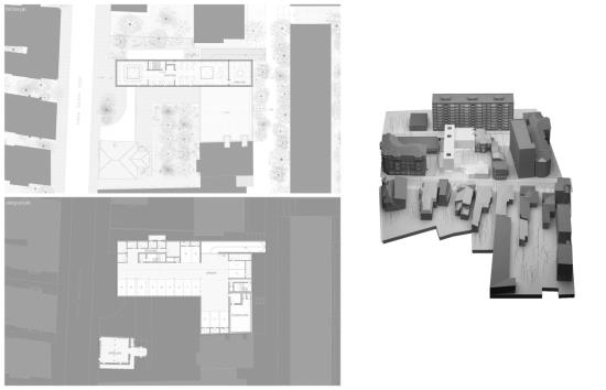
I wanted to integrate through the proposed volume the patrimony house into the project and the project into the actual tissue. Therefore, I proposed joining a volume with proportions taken from the Targovet house, that would make the transition between the existent and the new. This transition continues on the porch with portic from the house, which developes and gives the perimetral limits on 3 sides the garden generated by my project.

The relation with the street is made through a plaza that includes the caffe which is joined to the blind wall of the Targovet house, the principal acces in the building and the acces to the garden intermediate by the portico. In the interior of the ensemble, the functions with the highest public characteristics are placed at the ground level of the building, in great relation with the garden, implicit with the Targovet House. The National Institute of Heritage archive is situated in the first part of the volume, being developed on 3 levels, and on the other hand, the multifunctional sala, the workshops and temporary accommodation are placed in the volume that is joined with the blind wall in the back of the site.



UPDATED TEST

Tutor(s)
Andra Panait
2021
• Page Hits: 3331         • Entry Date: 05 October 2021         • Last Update: 06 October 2021