Next Project

‘What a Water-ful World’

Part 2 Project 2021
Nur Azzahra Mohamad Adzlee
University of East London London | UK
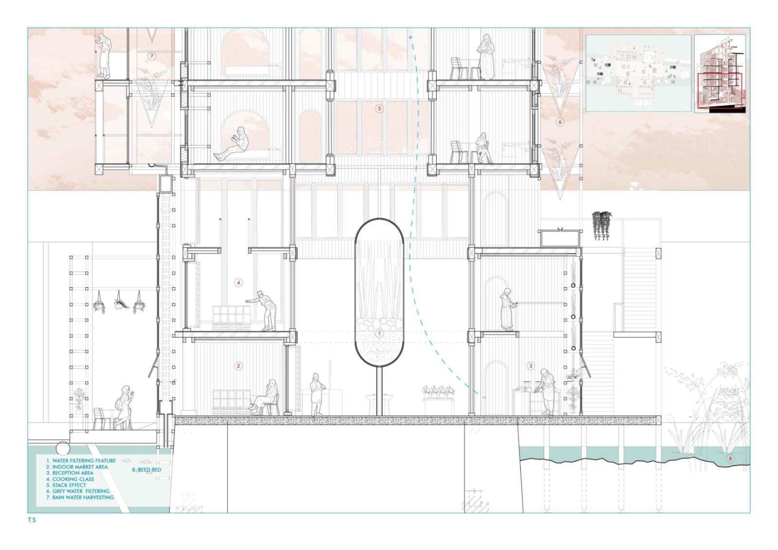
In light of these hard times, vulnerable communities are struggling harder as they wait in transit to start the next big chapter in their lives, be it to settle down for a new job, living with a new family, and even seeking refuge in a new country. This transitional period however is difficult to cope even before the pandemic started. It is important to create spaces of transit or of waiting and giving financial and mental support for these vulnerable communities, whilst addressing other global issues such as climate change, water scarcity and increasing food waste. What a Water-ful World is an Urban Farm and Market place, located at the Royal Docks, which is a multi-ethnic historical area that was once a booming trading center in the country and is now in need of regeneration. The project provides temporary accommodation to vulnerable communities such as refugees, and also provides training, education and temporary jobs at the market and farm itself while they wait in transit for the next big step in their lives. The project also aims to highlight the importance of efficient water use, and is a center for filtering harvested rain water and grey water around the royal docks community in Silvertown


Tutor(s)
Armor Gutierrez Rivas
Rosa Rogina
2021
• Page Hits: 3768         • Entry Date: 07 October 2021         • Last Update: 07 October 2021