Next Project

Toy Lab

Part 1 Project 2023
Yuxin Ma
University of Nottingham Ningbo | China
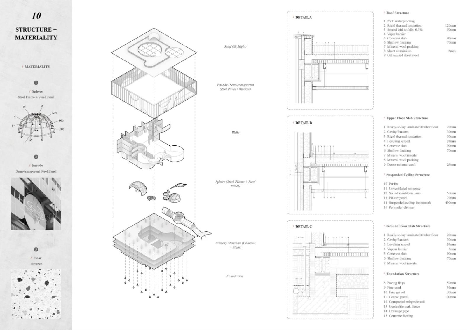
The Toy Lab takes a closer look at our theme of the master plan, "Mystery Box". Through research, I have learned that in the new era, the group of "Kidult", that is, adults who are interested in children's activities and entertainment, is growing and very popular. Besides, toys for adults are in great demand but in short supply in China.

Therefore, I designed a center that provides an experience to customize toys for adults, which is well suited to the needs of adults in the new age and is of great importance to the mental health of clients. Through the theme of "toys", I established elements with a sense of childlike interest, flow and floating: spheres, as the main element of the design, are endowed with the function of immersive experience space, such as 3D video room and gallery, which run through the whole building and connect the whole narrative. In addition to the custom toy workshop, the lab also includes a toy playing space, an educational space and a first-sale toy market.


Tutor(s)
Giaime Botti
Yat-Ming Loo
Yan Wang
Kathy Zhang
2023
• Page Hits: 2330         • Entry Date: 14 September 2023         • Last Update: 17 October 2023