Next Project

Kunming, China - Heritage Centre

Part 1 Project 2010
Peter Hinchcliffe
University of Huddersfield | UK
The project sits in the heart of Kunming, a city in South China known as the Spring City because of the mild climate all year round. Like many Chinese cities Kunming is developing rapidly, the consequences being a loss of cultural identity and large scale pollution. The cultural centre intends to present an alternative to the modern expanding city by offering both local and international visitors a view to Kunming as it is now and how it was before many of the traditional parts were redeveloped.

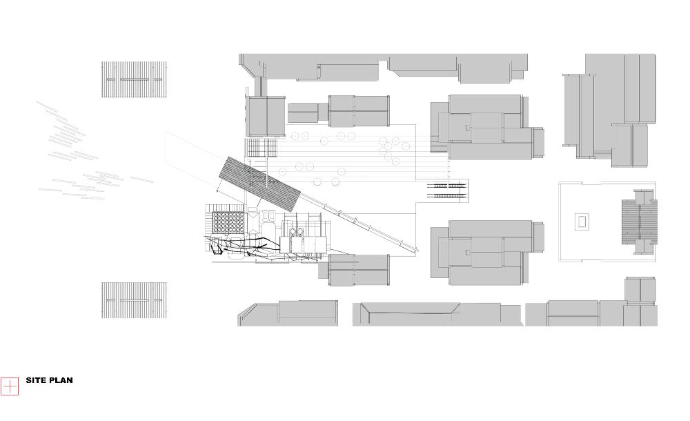
The new building is situated in a square, to the front are traditional Chinese gates. People pass through the square to the existing areas behind. Located within the square: an outdoor performance area and the cultural market. The market is made up of hanging pods used as stalls, the design based on the Chinese lantern. The stalls are easily moved providing an ultra flexible space depending on how busy the square is. The building is a fragmented form made of spaces defined by the contents which mirror the surrounding traditional looking area. Part of the new building sits within the traditional area embedded alongside existing businesses. The integrated parts of the new building exists with the local culture to encourage visitors to use the small shops rather than the modern large faceless malls.

The development consists of a café block sitting 26 degrees away from the building, each degree represents a cultural group in the province Yunnan. To the front facing the traditional gates is the main gallery and reception. The gallery reflects the outdoor market using display pods hanging from the ceiling. The pods to the side of the main gallery are held by a frame allowing the pods to be taken out for exhibition changes. This flexibility suggests of a building not forcing culture on Kunming but willing to change with the city. The frame is designed to illustrate the possible future of the city; a dark twisted form showing how if rapid development continues the city will lose its special cultural atmosphere.



The design process begins with questioning the layering of various cultural shifts taking place over time and is most vividly expressed in a much personalised response through a series of intricately woven sketches. The design of this cultural centre evolves as living organism which is able to grow and extend its tentacles into the existing expanding urban topography of Kunming. The language of the materiality and form avoids any stylistic references to traditional Chinese architectural styles. The design process excels in the detailed investigation of the complex interaction between the physical environment and the evolving local life styles.

The site for his building sits on an axis of a more than two thousand year old city of Kunming in China, between an over crowded pedestrian area and an underused large scale sunken square that was surrounded by some derelict 2-3 story buildings. Peter’s design solution not only investigates the ways that newly created spaces intervene with the existing space at various levels, but also creates new open public areas that support the access to existing small businesses at different levels as an alternative to the adjacent large shopping malls. The design process energetically explores the programme of information dissemination through a series of dynamic and sculptural components which are integral in defining the spatial choreography of the cultural centre. The design of the centre is thoroughly worked out through detailed site models within the local urban fabric at a range of scales and very personal explorations is most evident in the beautifully composed sketch books which are a real pleasure to explore.

Dr. Yun Gao
Mr. Vijay Taheem

Tutor(s)
Vijay Taheem
2010
• Page Hits: 12847         • Entry Date: 08 July 2010         • Last Update: 26 August 2010