Next Project

The California Cooperative

Part 2 Project 2011
Justin Randle
The Bartlett School of Architecture, UCL | UK
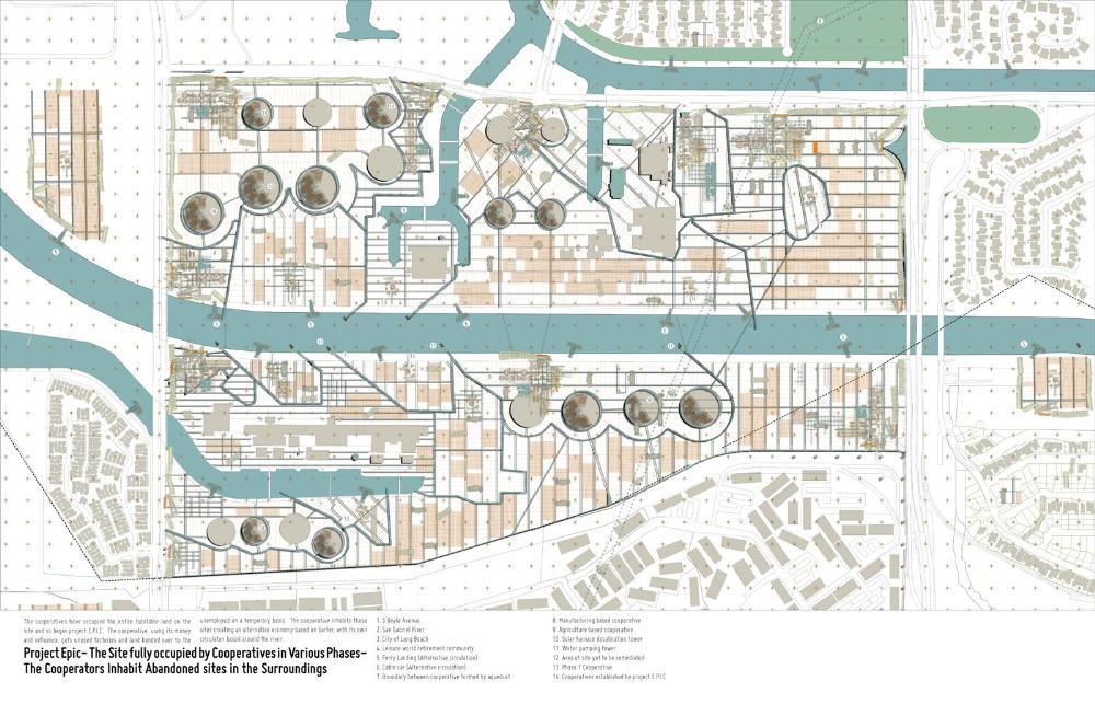
This project uses a series of complex models to investigate the spatial implications of the cooperative principles of universal admission, democratic organisation, barter, full employment and shared ownership. The proposal is to form a cooperative from the recently unemplyed among the remanaents of the former Haynes generator station on the banks of the San Gabriel River, Los Angeles. Using their skills and the ideas outlined above the cooperative seeks to provide work, shelter and the necessities of life.
Through a critical analysis of contemporary and historical cooperative social and economic organisations I have sought to propose an alternative urban regeneration strategy for Los Angeles. The architecture seeks to become an active participant in the building of the community and organisation through communal action and shared reponsibility.
The site is contamiated after years of industrial use, the bioremediation process that must be carried out creates a source of work for the cooperative. As more land is remediated the number of people the cooperative can suport grows.
The first series of models investigate the conceptual differences between contemporary and cooperative organisation in relation to the production and circulation of information, the production of commodities, how decisions are made and how transactions are conducted.
I then speculated what the necessary spaces essential to the function of the cooperative, their interrelationships and the phases through which the cooperative would grow. As the cooperative grows and matures the way it behaves and relates to surrounding communities evolves.
As I focused in on the experience and malleability of the spaces that made up the cooperative, the importance of the skills of the unemployed became apparent. By adopting and manipulating the processes, language and materials associated with declining industries and self build precedents I was able to speculate on the qualities of the spaces produced and how they could be created.


Tutor(s)
Ms Laura Allen
Mr Mark Smout
2011
• Page Hits: 13883         • Entry Date: 15 September 2011         • Last Update: 15 September 2011