Urban Dance: A complex multi-use programme knitted into existing fabric

Part 2 Project 2005
Adam Jundi
Matthew Wickens
University of Bath | UK
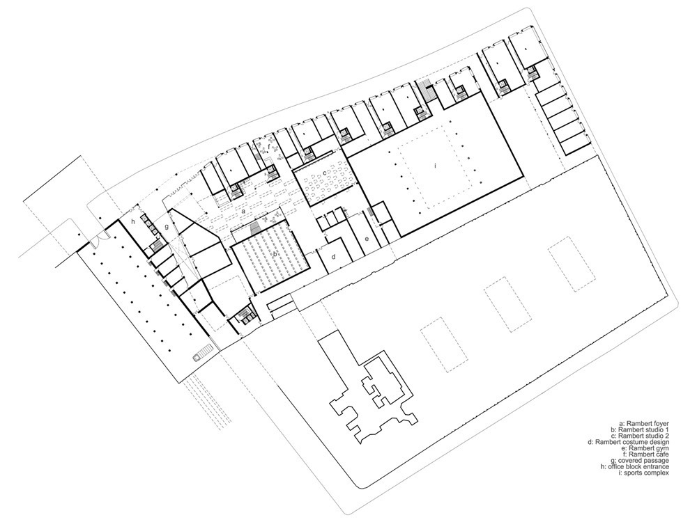
The proposal takes an existing brief for the site and explores the implications of extending its scope in terms of both programme and density. It extends and completes an existing urban block providing two new routes through the site and three courtyard spaces within - an entrance court, an academic quad and the dance courtyard.

The scheme combines the multifarious programmatic requirements of the Rambert Dance Company, a covered shopping passage, a bridge level arcade, rentable commercial space with rooftop restaurant, street level retail, live/work units, swimming pool, student housing and 9 storeys of residential accommodation in varying flat types.



In the London Plan, Waterloo is identified as an Area of Opportunity. It stresses the need to maximise the potential of sites, achieving plot ratios of 5:1.

The year started with an interest in the implications of the current policy led push for density and proposed that projects explore the qualitative aspects of density and place. We wanted to investigate the degree to which one can push density: when is it unsustainable or unacceptable? Are there reasonable upper limits? How do we create a quality urban environment as well as a place for the individual, under these pressures?

2005
• Page Hits: 5750         • Entry Date: 28 June 2005         • Last Update: 28 June 2005