Next Project

Spiritual Tower

Part 1 Project 2005
Marcel Paul Hubert Peeperkorn
University of the Witwatersrand Johannesburg | South Africa
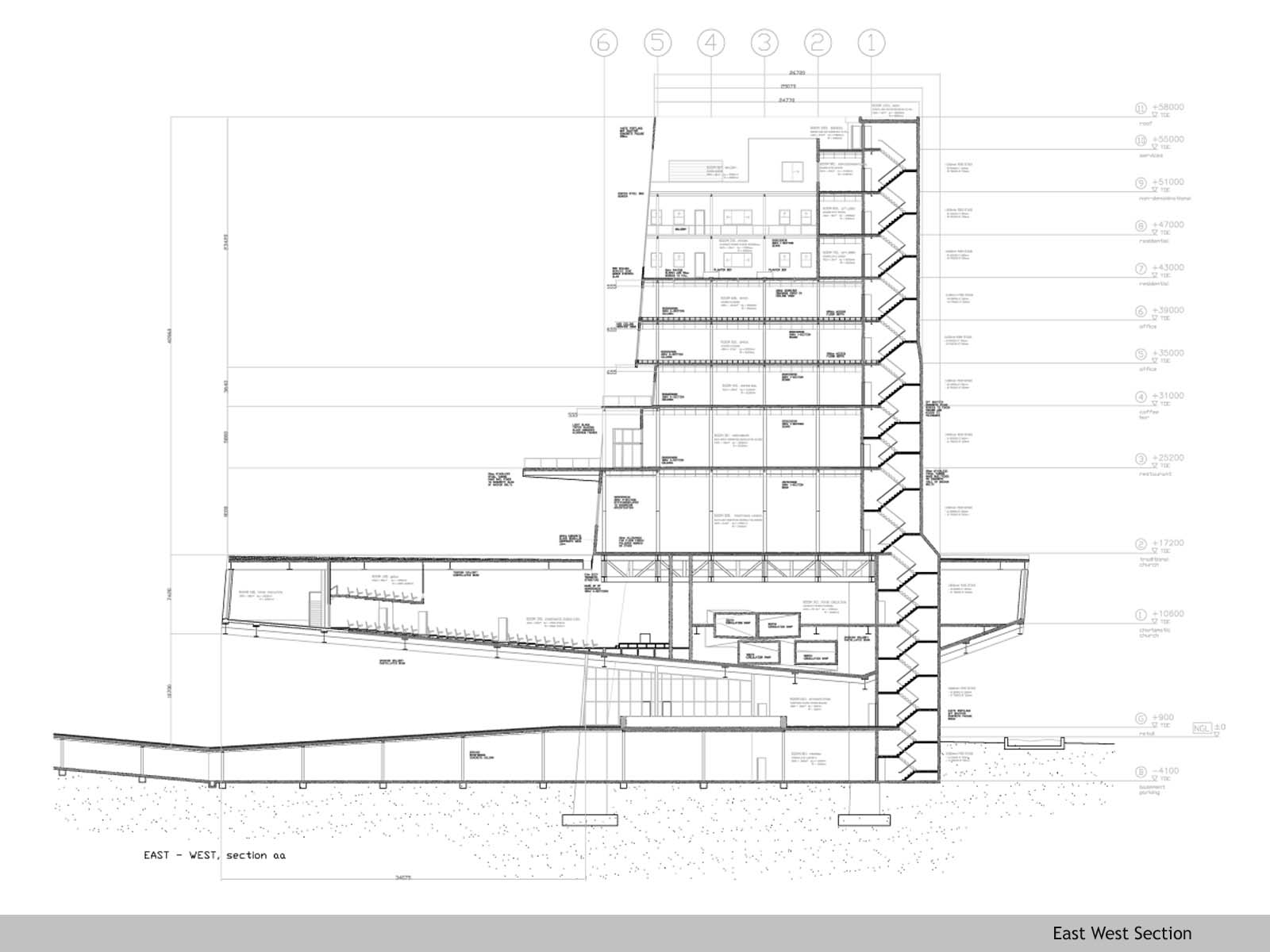
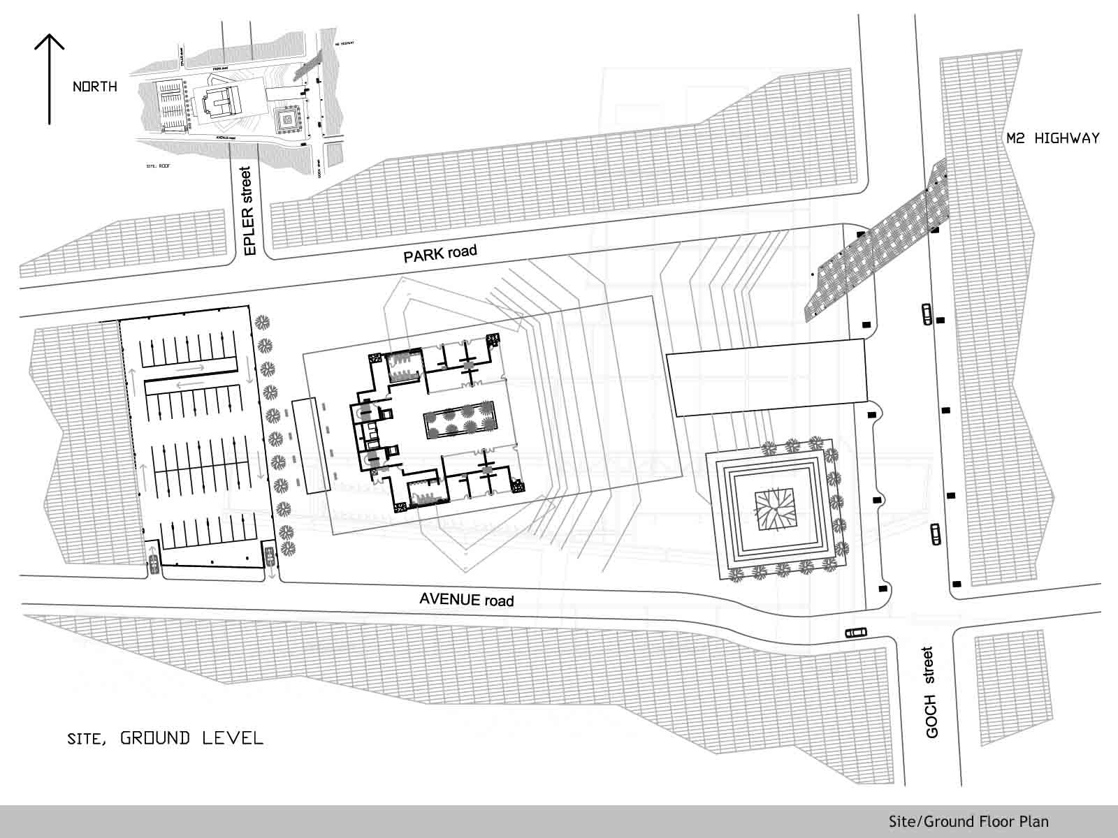
The tower contains three formal religious spaces. A thousand seat charismatic Church, a traditional Roman Catholic Church, and a Non-denominational space overlooking the city. The intention is to create a place of quiet and reflection in the city, a crossing of cultures. Due to the restrictive footprint of the site the charismatic church is lifted and cantilevered out the tower, capturing the space below and drawing people into the tower. The large resulting sculpted ground plane is public with a treed court used by Zionist congregations, and allows for mass congregations with the basement parking ramp providing a speakers mound.


Brief: A multi-storey structure as mixed-use religious space, within an existing urban context. Students had to develop theoretical bases for an urban landscape program, responding to a volatile 3rd world city. Incredible energy of spontaneous events such as Zionist weddings in a concrete canyon, or Muti (medicine) markets below freeways attest the underlying cultural potential. Multi-faceted religions occupy quarters, such as inner-city mosques, charismatic industrial churches, or synagogues / cathedrals in traffic islands. Students were required to combine three different “spiritualities” in a ten storey tower, neighbouring an inner-city double-deck highway, elaborated to great design & construction detail, as mini-thesis.

2005
• Page Hits: 10863         • Entry Date: 06 September 2005         • Last Update: 06 September 2005