Concrete 21-21 51 Avenue Queens 11101

Part 2 Project 2012
Anders Kruse Aagaard
Aarhus School of Architecture | Denmark
CONCRETE 21-21 51 AVENUE, QUEENS 11101 is founded on interests in material and context. Material and materiality has a great impact on how a place in perceived and experienced. The relationship between material and context is often bound to time – the time of construction and the time passed. For that reason older buildings often holds a tactile quality that newer building do not. In this project I will search for connections between material and context and ways to incorporate context- and time-related observations into material itself.

The project is divided in a four part chronological process – ‘material experiments’, ‘context analysis’, ‘production’ and ‘factory’. Each part investigates the projects interest from an individual view with the former parts as starting points.

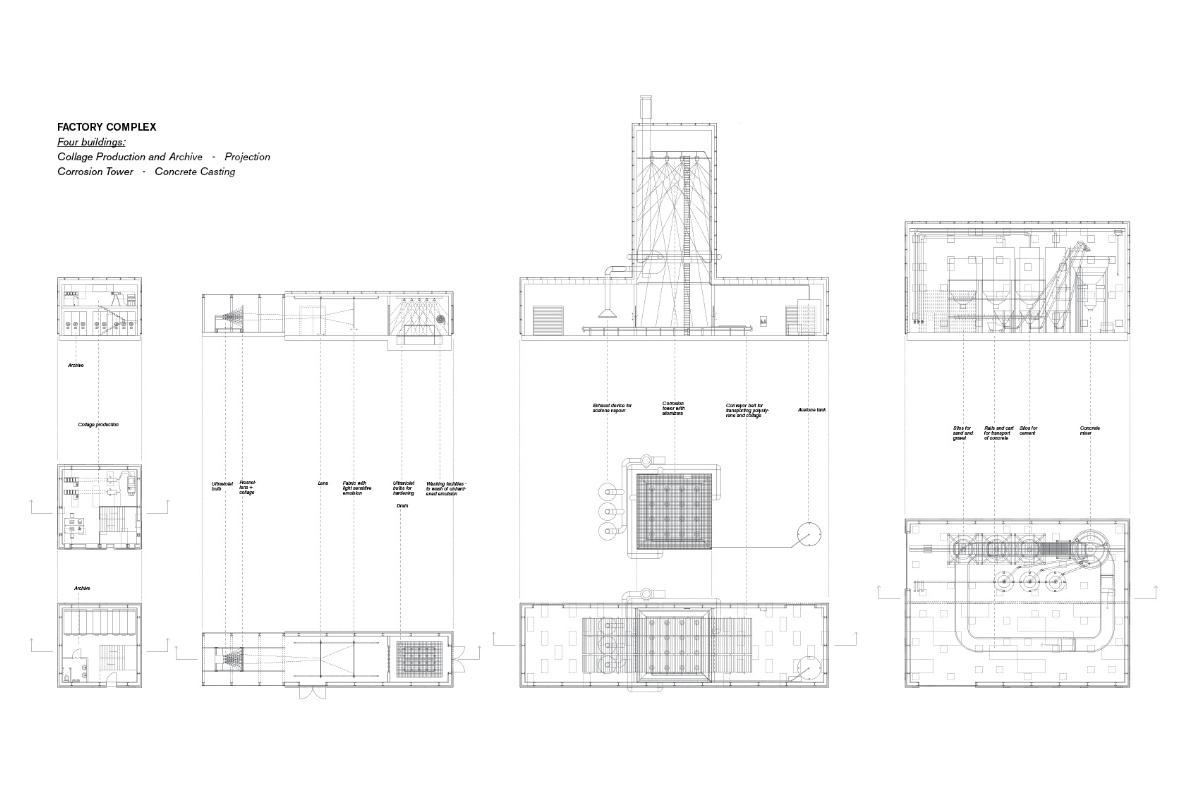
BETON 21-21 51 AVENUE, QUEENS 11101 is a quantity of material experiment combined with a collage analysis of a context. The combination produces a line of 1:1 productions devices. A fragment archive, a collage creations box, a silk screen projection unit and a corroding machine. The product is a polystyrene slab with a corroded 3D interpretation of a 2D collage on which concrete is casted. Final result is a construction material with an embedded story from context and time.

The devices are converted to the vision of a factory with an up-scaled production line and placed in the context from where the analysis started.

The factory is build with its own concrete material and set up to deliver new materials in the NYC area.


Tutor(s)
Claus Pedersen
2012
• Page Hits: 4778         • Entry Date: 11 September 2012         • Last Update: 11 September 2012