Two Mill Meads, a Generic Urban Building

Part 1 Project 2012
Joseph Lyth
Kingston University Kingston | UK
The ‘Generic Urban Building’ aimed to produce a building that would stand the test of time through its flexibility of space, quality of materials and design. A principle concern that ensures a buildings longevity is its response to the site. A building lasts when it is integrated into its surroundings. Through the project I explored this concept by analysing the wider context; the history of the site, the current situation, and the future developments spawned by the Olympics.

The result was Two Mill Meads, a building that sought to become a part of this wider context. The existing qualities of the site are an integral part of the project as a way of softening the urban character set by the studio brief. Public realm was paramount, as during the initial site investigation it was found to be very limited. Spaces around and within the building footprint are extensions of the defining themes of the Greenway and the Lea Valley Park, providing open areas of varying degrees of privacy.

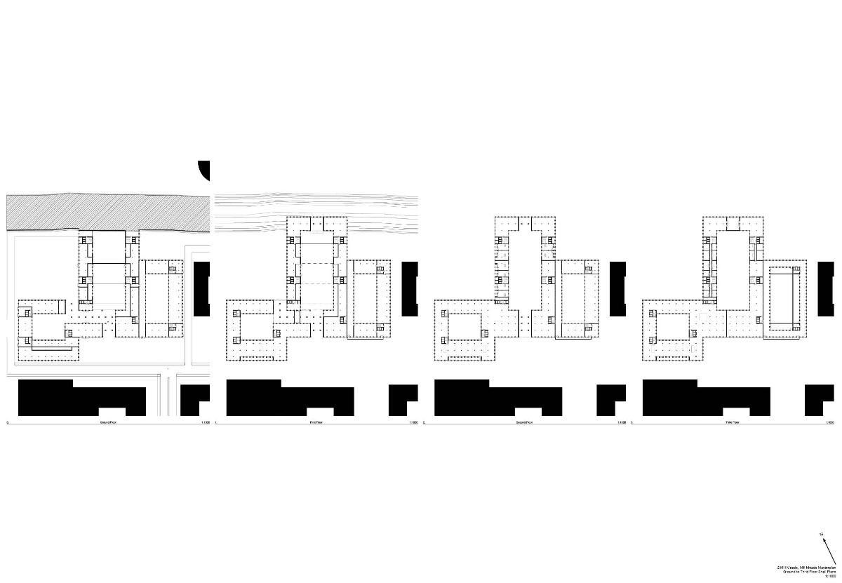
The tectonic statement of the building is one of solidity. The external geometric massing establishes this, and the relentlessness and scale of the facade enforces it. On closer inspection this is subdued by the details. The warm tones and texture of the brick, coupled with the natural hardwood window frames create a welcoming facade. On entering the courtyard spaces the strong geometric statement of the exterior is juxtaposed against the deconstructed internal forms. As with the Berlin courtyard type, and in keeping with the aims of the studio, the interior is intended to be esoteric, with the openings through the building offering glimpses inside.

The scale of the building defines its flexibility. Instead of one building attempting to cater for many uses, the plan accommodates a wide variety of uses en masse. One part of the building may be a hotel, one an open plan office, one an artists community with both living and working occurring. Two Mill Meads is a community within itself, its versatility ensuring its successful legacy, and its generic external character withstanding the test of time.


Tutor(s)
Jonathan Woolf
Ben Wright
2012
• Page Hits: 7961         • Entry Date: 21 September 2012         • Last Update: 21 September 2012