Next Project

Mei Foo Co-op: New Communal Shophousing for Post-Coronavirus Co-Living / Co-Working

Part 1 Project 2020
Hin Fung Sherman Lam
University of Hong Kong | China
During the coronavirus, most people are made to both work and live in their homes, but sometimes this sudden change is not so welcomed. The home is not intended for work and the office not for living. The quarantine made me wonder if this relationship between working and living has to be so detached - would living in housing beyond the nuclear family be possible?

Meifoo Sun Chuen, the first private housing estate in Hong Kong, is a pioneer in the podium
+ point block tower typology. The podium, with both circulatory and retail/service functions, proved to be essential to the livelihood of more than 40000 residents. Contrary to the
street-like vibrancy of the podium, the individual flats seem isolated amidst a silent airspace. Given the ever-rising population of Hong Kong, more living space is again required to accommodate more residents in this neighbourhood.

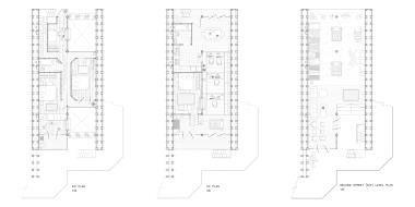
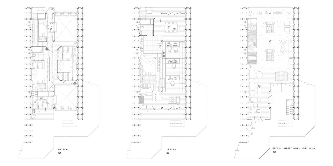
This project investigates and appropriates the traditional Hong Kong typology of the shophouse, of which families lived on the upper floor while the lower floor served as shops - such spaces have long acted as the catalyst for serendipity and urban encounters between the family and the public. This project aims to densify Meifoo without sacrificing quality of life through a shophouse cooperative model.


Tutor(s)
Guillaume Othenin-Girard
2020
• Page Hits: 4118         • Entry Date: 02 October 2020         • Last Update: 01 November 2020